Królewskie Miasto Darłowo      Darłowo na Facebook'u  Darłowo na YouTube  Radio Koszalin  Pogoda

Darłowo - Darłówko idealny duet do wypoczywania
linia ozdobna
Królewskie Miasto Darłowo linia ozdobna

Burmistrz zaprasza na dyskusję nad projektem części planu przestrzennego zagospodarowania Darłowa

Darłowo, 18 sierpnia 2014 roku

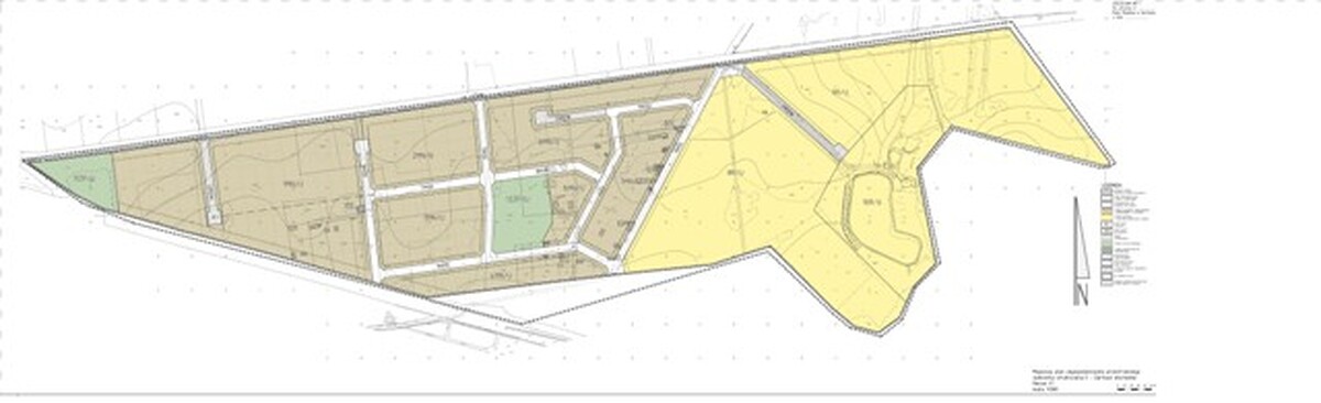
Arkadiusz Klimowicz burmistrz Darłowa zawiadamia o wyłożeniu do publicznego wglądu projektu wraz z prognozą oddziaływania na środowisko miejscowego planu zagospodarowania przestrzennego dla jednostki strukturalnej E–Darłowo Wschodnie. Leży ona w Darłowie  w obszarze E1 i obejmuje teren pomiędzy ulicą Leśną a południową granicą miasta Darłowo. Z projektem i prognozą można zapoznać się w dniach od 11 sierpnia 2014 r. do 9 września 2014 r. w siedzibie Urzędu Miejskiego w Darłowie, pok. nr 25, w godz. od 8.00 do 15.00 oraz na stronie Biuletynu Informacji Publicznej Miasta Darłowa w dziale Miejscowy plan zagospodarowania przestrzennego Miasta Darłowo. Dyskusja publiczna nad przyjętymi rozwiązaniami odbędzie się w środę 20 sierpnia 2014 w siedzibie Urzędu Miejskiego w Darłowie (sala nr 22) o godz. 11.00. Zapraszamy.

Każdy, kto kwestionuje ustalenia przyjęte w projekcie planu miejscowego lub w prognozie, może wnieść uwagi, które rozpatrzy burmistrz Darłowa. Uwagi należy składać w formie pisemnej na adres Urzędu Miejskiego w Darłowie, Plac T. Kościuszki 9, 76-150 Darłowo lub ustnie do protokołu w pokoju nr 25 w godzinach pracy Urzędu oraz za pomocą środków komunikacji elektronicznej (bez konieczności opatrzenia podpisem elektronicznym) na adres e-mail poczta@darlowo.pl w nieprzekraczalnym terminie do dnia 23 września 2014, z podaniem imienia i nazwiska bądź nazwy jednostki organizacyjnej i adresu oraz oznaczenia nieruchomości, której uwaga dotyczy.

L. Walkiewicz

Burmistrz zaprasza na dyskusję nad projektem części planu przestrzennego zagospodarowania Darłowa

Zobacz nas na Facebook'u

Polityka prywatności

Strona korzysta z plików cookie w celu realizacji usług zgodnie z Polityką Cookies. Możesz określić warunki przechowywania lub dostępu do cookie w Twojej przeglądarce lub konfiguracji usługi.

 

Zgadzam się Nie, chcę dowiedzieć się więcej