Królewskie Miasto Darłowo      Darłowo na Facebook'u  Darłowo na YouTube  Radio Koszalin  Pogoda

Darłowo - Darłówko idealny duet do wypoczywania
linia ozdobna
Królewskie Miasto Darłowo linia ozdobna

Ogłoszono przetarg na rozbudowę infrastruktury nowego basenu rybackiego

Darłowo, 5 listopada 2014 roku

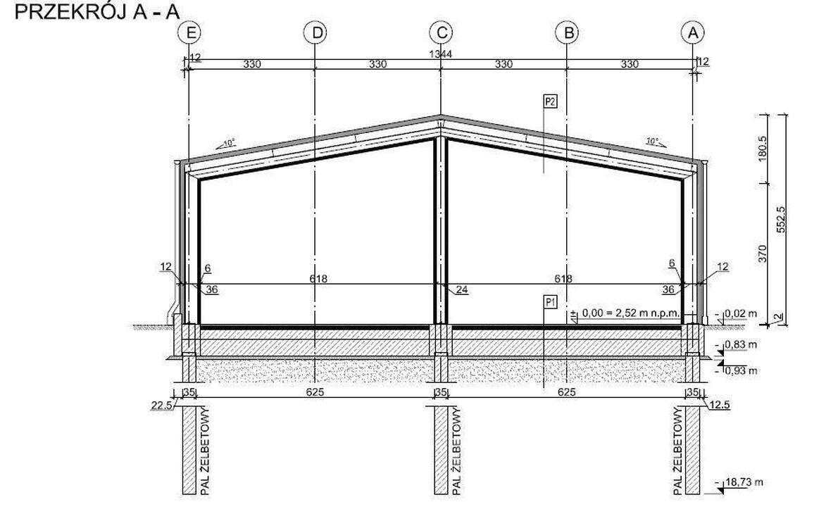
Burmistrz Darłowa – Arkadiusz Klimowicz ogłosił przetarg nieograniczony na „Budowę hal magazynowych, toalety wraz z przyłączami, osłonami śmietników oraz zagospodarowaniem terenu – basen rybacki w porcie Morskim Darłowo”. Inwestycja będzie polegać na rozbudowie portowej infrastruktury o trzy hale magazynowe o łącznej powierzchni 2053 metrów kwadratowych i kubaturze 10 tys. metrów sześciennych. Ponadto ma być zbudowana toaleta, kanalizacja sanitarna, wodociąg, przyłącze energetyczne i dwie osłony śmietnikowe oraz zagospodarowany teren. Pieniądze na inwestycję pochodzą z unijnego programu rybackiego ze środków Europejskiego Funduszu Rybackiego w ramach Programu Operacyjnego „Zrównoważony rozwój sektora rybołówstwa i nadbrzeżnych obszarów rybackich 2007-2013”. Środek 3.3 „Inwestycje w portach rybackich, miejscach wyładunku i przystaniach”.  Oferty na realizację inwestycji będą przyjmowane do 20 listopada 2014. Planowany termin zakończenia inwestycji - 29 maja 2015 r.

L. Walkiewicz

Ogłoszono przetarg na rozbudowę infrastruktury nowego basenu rybackiegoOgłoszono przetarg na rozbudowę infrastruktury nowego basenu rybackiegoOgłoszono przetarg na rozbudowę infrastruktury nowego basenu rybackiego

Zobacz nas na Facebook'u

Polityka prywatności

Strona korzysta z plików cookie w celu realizacji usług zgodnie z Polityką Cookies. Możesz określić warunki przechowywania lub dostępu do cookie w Twojej przeglądarce lub konfiguracji usługi.

 

Zgadzam się Nie, chcę dowiedzieć się więcej